Zum Inhalt springen
Seniorenquartier Altenmarkt

Seniorenquartier Altenmarkt

Objekttyp
Etagenwohnung
Plz
83352
Ort
Altenmarkt an der Alz
Wohnfläche
53.78 m²
Zimmer
2
Objekt-Nr.
8492_41_1

Ansprechpartner-Übersicht

  • Profilbild Immobilienansprechpartner

Lagebeschreibung

In unmittelbarer Zentrumslage entsteht das neue Seniorenquartier in bevorzugter Lage. In unmittelbarer, fußläufiger Umgebung um das Grundstück befinden sich alle Einrichtungen des täglichen Lebens (Einkaufsmöglichkeiten, Cafés, Ärzte, Apotheken, Kirche, Gemeindeverwaltung, Naherholungsmöglichkeiten, etc.), was eine aktive Teilnahme am Gemeindegesch...
In unmittelbarer Zentrumslage entsteht das neue Seniorenquartier in bevorzugter Lage. In unmittelbarer, fußläufiger Umgebung um das Grundstück befinden sich alle Einrichtungen des täglichen Lebens (Einkaufsmöglichkeiten, Cafés, Ärzte, Apotheken, Kirche, Gemeindeverwaltung, Naherholungsmöglichkeiten, etc.), was eine aktive Teilnahme am Gemeindegeschehen auch im hohen Alter und bei körperlichen Einschränkungen weiterhin ermöglicht. Ein ausschlaggebender Punkt des Konzeptes des Seniorenquartiers ist es, dass sich die Anlage und die sie bewohnenden Menschen in die Gemeinde einfügen und als integraler Teil dieser verstanden werden. Eine Ghettoisierung der „Pflegeeinrichtung“ innerhalb der Ortschaft soll verhindert werden. Auch dies wird durch die gute, zentrale Lage ermöglicht und vereinfacht.

Objektbeschreibung

Es entsteht inmitten des Ortes Altenmarkt ein moderner Neubau mit schöner Grünanlage : - 20 x EZ (ca. 21 m²) davon 4 x rollstuhlgerecht ausgestattet - 2 x DZ (ca. 26 m²) rollstuhlgerecht ausgestattet - 38 x 1,5- Zi. Appartements (zwischen 43 m² und 59 m²) - 4 x 2 Zi- Appartements (zwischen 62 m² und 93 m²) - 2 Gewerbeeinheiten (Tagespflegee...
Es entsteht inmitten des Ortes Altenmarkt ein moderner Neubau mit schöner Grünanlage : - 20 x EZ (ca. 21 m²) davon 4 x rollstuhlgerecht ausgestattet - 2 x DZ (ca. 26 m²) rollstuhlgerecht ausgestattet - 38 x 1,5- Zi. Appartements (zwischen 43 m² und 59 m²) - 4 x 2 Zi- Appartements (zwischen 62 m² und 93 m²) - 2 Gewerbeeinheiten (Tagespflegeeinrichtung und Tagescafé ) An einem Ort werden die verschiedensten Betreuungsformen miteinander vereint: Ambulant betreute Wohnungen, Tagespflege sowie ambulant betreute Wohngruppen. Die Tagespflege ist auf 20 Gäste ausgelegt und besitzt eine Gesamtfläche von 245 m². Hierzu gehört ein großer Aufenthaltsbereich mit Tagesküche, Ruheräume, ein Pflegebad, Personal- und Büroräume, sowie WC- und Lagerflächen.

Energieinformationen

Energieausweis
Es besteht keine Pflicht!
Endenergieverbrauch
0.00 kWh/(m²a)

Galerie

Seniorenquartier Altenmarkt
Seniorenquartier Altenmarkt
Seniorenquartier Altenmarkt
Seniorenquartier Altenmarkt
Seniorenquartier Altenmarkt
Seniorenquartier Altenmarkt
Seniorenquartier Altenmarkt
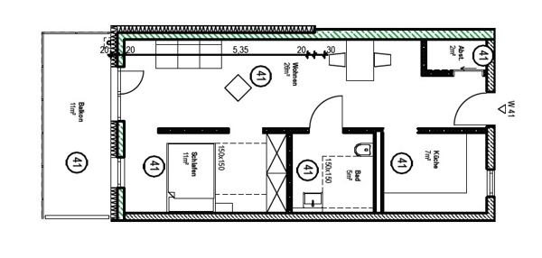
Wohnung 41
Ihr Ansprechpartner Maria_Krautenbacher Ur-Version

Fragen Sie diese Immobilie jetzt an!

Kaufpreis 364.167 € Keine Käuferprovision!

Immobilien-Kontaktformular

Benötigen Sie eine Finanzierung?

Das könnte Ihnen auch gefallen